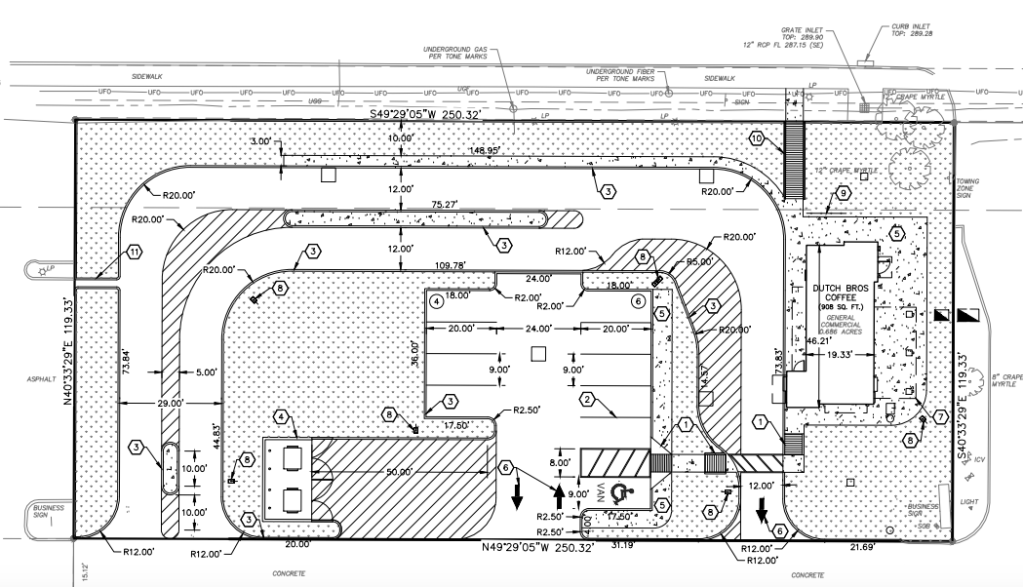
Dutch Bros. Coffee has submitted a site plan for a third College Station location at Texas and Southwest Parkway. The popular national chain of franchised coffee shops made its entry into the Texas market with the opening of its first College Station location on Wellborn Road near Jones Crossing. Dutch Bros. has since opened another store in Bryan on Boonville Road. A total of five Dutch Bros. outlets are planned for the Brazos Valley, two Bryan locations and three in College Station.

Reblogged this on BRAZOS GUARDIAN.
LikeLike